
龙湖金地商置 · 都会风华天幕生活馆
Longhu Golden Land Commercial Metropolitan Fenghua Sky Curtain Living Hall
中国,杭州
Hangzhou, China
传统元素大多有着内敛、质朴之美
对称、匀称、中庸、细腻、沉稳
还有那灵动而优雅,从梦里飞舞出来的蝶
灵动活泼又不失优雅曼妙
序 | 传承
丨意致东方,情致现代
本案坐落于文化氛围浓郁的杭州,为充分结合周边情况,融入杭州火车东站整体规划风格,其具有鲜明的时代性和文化氛围的设计基调便确定了下来。我们将现代建筑的简洁明快与东方建筑的写意山水完美组合,臆造了一个纯净的禅意园林,天人合一、宁静致远,让人仿佛进入了画中世界。




设计上考虑把首层架空,将景观渗透融入建筑,扩大延展了景观塑造空间,解决用地紧贴道路造成的入口前场的局促感。底层形成整体宁谧的镜面水池,参观者通过如漂浮于水面的石桥进入售楼处,营造出极具东方韵味的场景仪式感。




置 | 格局
丨东方韵味,现代元素
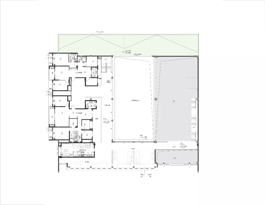
本案共2层,设计为围合型现代东方建筑,底层架空。首层主体为11米通高售楼处接待大厅,展示区,洽谈区,北面为办公区、儿童活动区、茶吧及财务收款。通过展示区艺术楼梯来到二楼,穿过休憩区进入样板房,一个半回字型的参观流线结束后,下到底层架空景观区,在镜面水池中的曲折步道中回到售楼处大厅。

#总平面#

#一层平面#

#二层平面#
在提取东方传统建筑元素的基础上,将现代元素和中国传统文化元素创新性地结合在一起,打造富有中国文化韵味的建筑,是中国传统风格文化在当前时代背景下的完美演绎。




展 | 意境
丨镜花水月,桃花源记
大厅内,一步一景,步步流连,玻璃盒子般的接待空间似漂浮水中,与内空间皆以水中灵树印景。空间上的转换与对比形成感官心理上的意境营造,接待空间通透为虚,与二层调控整体为实的内院空间形成反差,如桃花源般,给予强烈的心灵震撼。










我们以匠心践行,用细节、品质展现更时尚的东方美学。建筑细节强调轴线对称,营造简洁大气、极具仪式感的氛围。蕴含古今,见之不忘,简约风尚,心之所向。





居 | 归所
丨都会之磅礴,东方之典雅
龙湖金地商置·都会风华项目地块位于杭州市江干区彭埠单元,南侧距1、4号线换乘站彭埠站550m,1站可达杭州东站。项目总用地面积26211平米。容积率3.2。项目地上共8幢建筑:地块南侧为5幢住宅16层高层住宅,建筑高度48.45米。地块北侧为2幢10层的办公,建筑高度48.31米,和1幢11层的办公,建筑高度49.53米。
在“更熟悉的风土人情”、“更文化的舒居体验”、“更时尚的东方美学”的主张之下,项目将城东新城的“都会”概念创新融入于风华产品之中,是“都会之磅礴”与“东方之典雅”的完美融合,将开启城东板块的东方美学生活,成为引领性标杆。

项目档案
项目名称丨龙湖金地商置 · 都会风华天幕生活馆
项目功能/类别丨住宅/展示区
项目位置丨杭州花园兜路与环站东路交叉口
建筑设计丨南方设计
主创团队丨王智 孙益
景观设计丨上海地泽景观设计
幕墙设计丨弗思特工程咨询
室内设计丨上海禾悉建筑设计
占地面积丨2998㎡
建筑面积丨1300㎡
建筑高度丨11米
设计周期丨2个月
竣工时间丨2018年11月
建筑摄影丨子悠